- Large and beautifully finished Belgravia apartment
- Spacious and bright double reception
- Spacious and bright double reception
- Lovely private terrace and small patio
- Moments away from Sloane Square
- Westminster City Band G £1,695.30
An elegant and exquisitely presented Belgravia apartment boasting original period features located moments from Sloane Square.
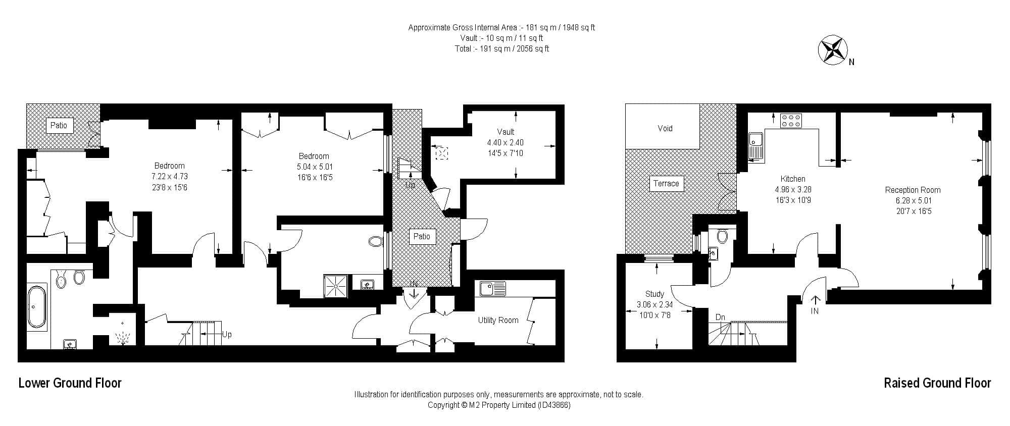
An elegant and exquisitely presented Belgravia apartment boasting original period features located moments from Sloane Square. This beautiful raised ground and lower ground floor apartment is spread over 2,051 sqft, and comprises a large double reception room with dining area and high ceilings throughout, part open plan fully fittedkitchen and breakfast room with doors leading out to the spacious private terrace, guest bedroom and cloakroom, downstairs leads to a large hallway with study area, principal bedroom with fitted wardrobes, en-suite bathroom and small patio, and second double bedroom with modern en-suite shower room. The property further benefits from a separate utility room, further storage space in the vaults and original period features such as a white stucco façade, high ceilings, cornicing and large windows providing an abundance of natural light. West Eaton Place is an exclusive address in the heart of Belgravia, close to both Sloane Square and Knightsbridge. The closest underground station is Sloane Square (District & Circle line).
An elegant and exquisitely presented Belgravia apartment boasting original period features located moments from Sloane Square.
- Large and beautifully finished Belgravia apartment
- Spacious and bright double reception
- Spacious and bright double reception
- Lovely private terrace and small patio
- Moments away from Sloane Square
- Westminster City Band G £1,695.30
Property Details
West Eaton Place, Knightsbridge, SW1X
- Large and beautifully finished Belgravia apartment
- Spacious and bright double reception
- Spacious and bright double reception
- Lovely private terrace and small patio
- Moments away from Sloane Square
- Westminster City Band G £1,695.30
An elegant and exquisitely presented Belgravia apartment boasting original period features located moments from Sloane Square.
An elegant and exquisitely presented Belgravia apartment boasting original period features located moments from Sloane Square. This beautiful raised ground and lower ground floor apartment is spread over 2,051 sqft, and comprises a large double reception room with dining area and high ceilings throughout, part open plan fully fittedkitchen and breakfast room with doors leading out to the spacious private terrace, guest bedroom and cloakroom, downstairs leads to a large hallway with study area, principal bedroom with fitted wardrobes, en-suite bathroom and small patio, and second double bedroom with modern en-suite shower room. The property further benefits from a separate utility room, further storage space in the vaults and original period features such as a white stucco façade, high ceilings, cornicing and large windows providing an abundance of natural light. West Eaton Place is an exclusive address in the heart of Belgravia, close to both Sloane Square and Knightsbridge. The closest underground station is Sloane Square (District & Circle line).










